π©π«π¨π£πππ. olleros
π₯π¨ππππ’π¨π§. bs as, argentina
ππ²π©π. residential interior design
π₯π¨ππππ’π¨π§. bs as, argentina
ππ²π©π. residential interior design
interior design by BE Studio
year. 2025
year. 2025
memory.
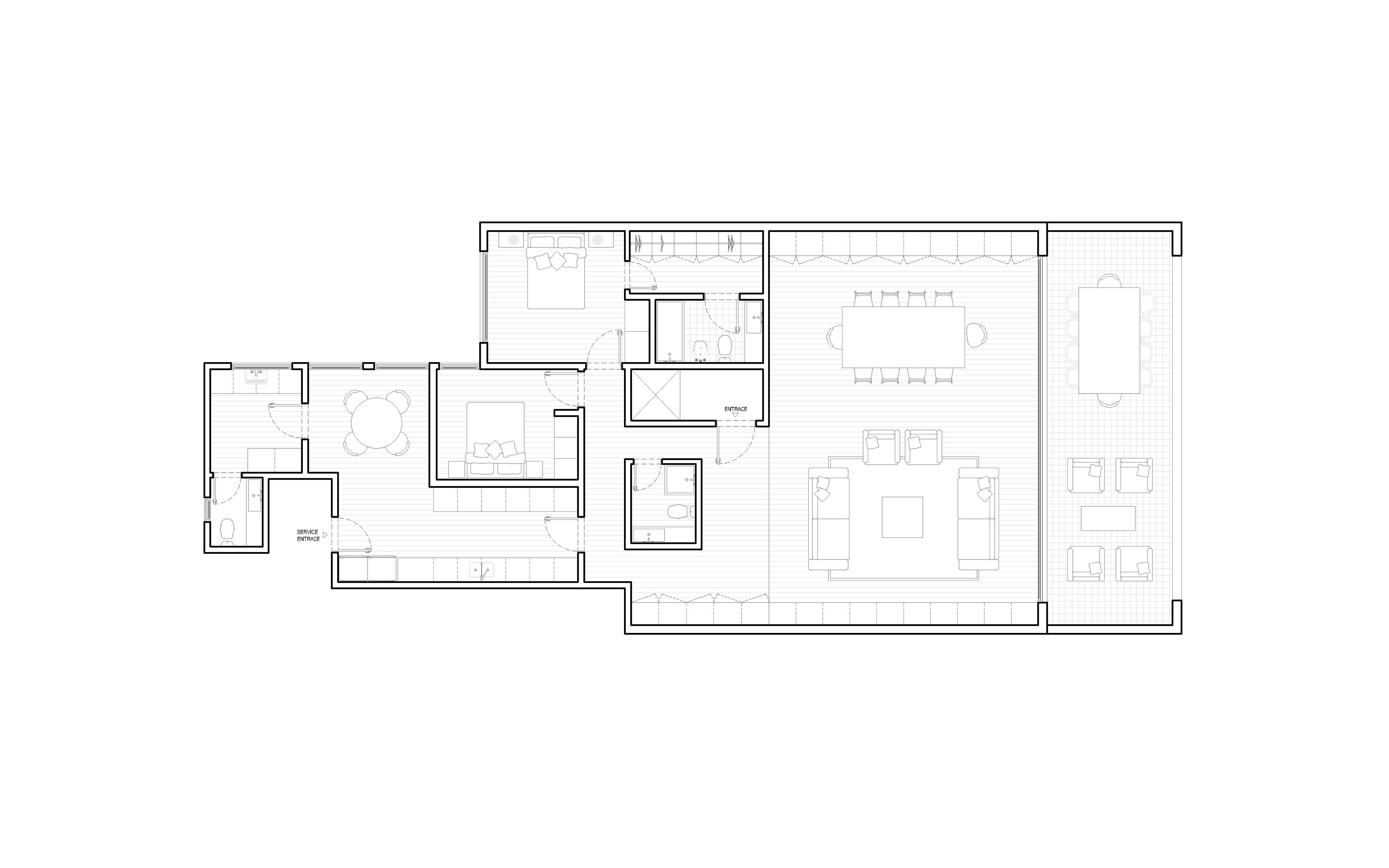
Interior architecture for a 190 mΒ² residential apartmentΒ locatedΒ in Buenos Aires.
As a design partner, BE Studio was commissioned by a residential rental company to deliver a high-quality interior design approach for a project requiring a level of detail and spatial refinement beyond standard residential models.
The space is conceived as a refuge of calm and disconnection.
The selection of natural materials, combined with simplicity and a pared-back aesthetic, invites a reconnection with the essentials.
The project highlights the use of wood, stone, and natural textiles, which bring warmth and timelessness.
As a design partner, BE Studio was commissioned by a residential rental company to deliver a high-quality interior design approach for a project requiring a level of detail and spatial refinement beyond standard residential models.
The space is conceived as a refuge of calm and disconnection.
The selection of natural materials, combined with simplicity and a pared-back aesthetic, invites a reconnection with the essentials.
The project highlights the use of wood, stone, and natural textiles, which bring warmth and timelessness.
more coming soon